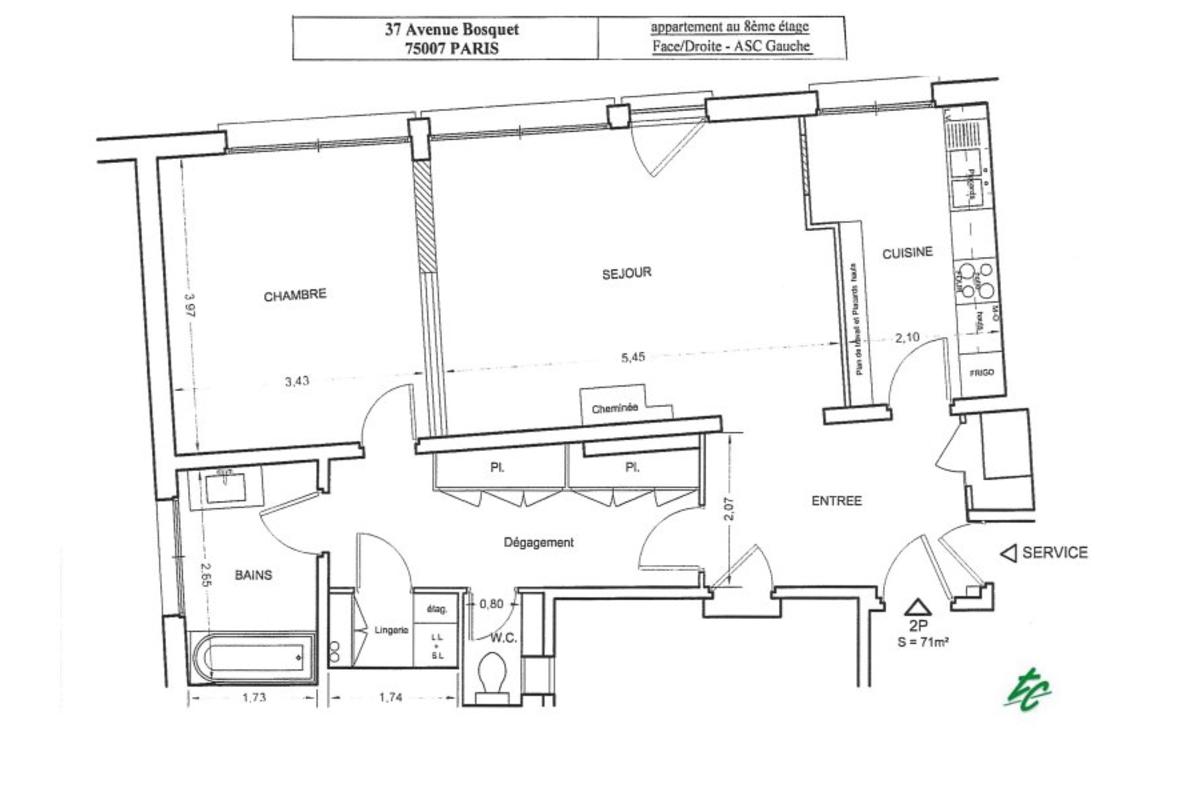
AVENUE BOSQUET
Loyer : 2 860 €
Dont charges : 360 €
Dépôt de garantie : 2 500 €
Superficie : 71 m²
Pièces : 2
Type de chauffage : collectif
UN BEAU 2 PIECES BIEN AGENCE
Avenue Bosquet, dans un immeuble des années 60 de très bon standing, à louer un appartement de 2 pièces, clair et en excellent état :
- 8e étage : 71 m²,
* une entrée avec penderie,
* un séjour avec cheminée décorative,
* une chambre,
* cuisine aménagée,
* une salle de bains,
* un sanitaire séparé,
* une lingerie,
* un dégagement avec placards,
* parquet,
* 1 cave
- 8e étage : 71 m²,
* une entrée avec penderie,
* un séjour avec cheminée décorative,
* une chambre,
* cuisine aménagée,
* une salle de bains,
* un sanitaire séparé,
* une lingerie,
* un dégagement avec placards,
* parquet,
* 1 cave