BOULEVARD SAINT MICHEL
Loyer : 5 920 €
Dont charges : 520 €
Dépôt de garantie : 5 400 €
Superficie : 170 m²
Pièces : 6
Type de chauffage : collectif
Jardin du Luxembourg - Elégant appartement familial et de réception
A toute proximité du jardin du Luxembourg, dans un immeuble haussmannien de très bon standing avec gardien et ascenseur, très bel appartement de 6 pièces :
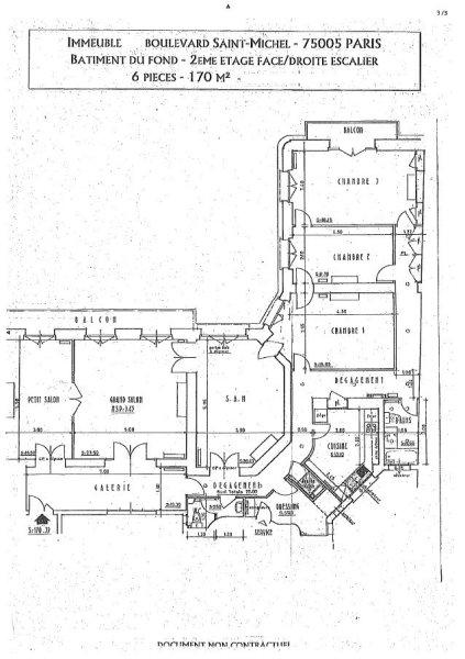
- 2e étage : 170 m²
* Une galerie d'entrée, un grand salon avec balcon, 1 salle à manger, 1 petit salon ou chambre, 3 chambres
* 1 salle de bains avec sanitaire, 1 salle d'eau, 1 sanitaire séparé, 1 cuisine aménagée
* Parquet, cheminées, moulures
* Dressing, placards et dégagements
* Une cave complète ce bien.
- 2e étage : 170 m²
* Une galerie d'entrée, un grand salon avec balcon, 1 salle à manger, 1 petit salon ou chambre, 3 chambres
* 1 salle de bains avec sanitaire, 1 salle d'eau, 1 sanitaire séparé, 1 cuisine aménagée
* Parquet, cheminées, moulures
* Dressing, placards et dégagements
* Une cave complète ce bien.