RUE DE L'ECHIQUIER
Prix : 5 700 000 € HD
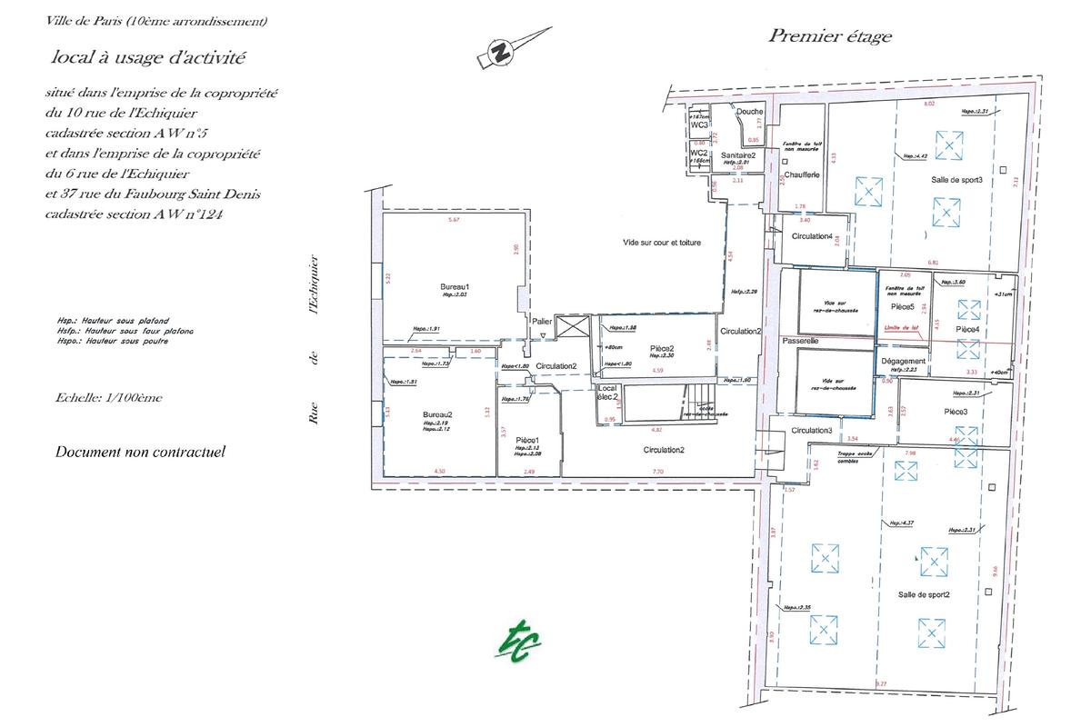
Superficie : 571 m²
Réf : 01976
Diagnostic du bien
Description du bien
			IDEAL SALLE DE SPORT, CENTRE DE REMISE EN FORME, CENTRE DE FORMATION.
Ce bâtiment abritait l'ancien cabaret Concert Mayol, transformé depuis en salle de sport.
Linéaire de vitrine de 8m avec 2 accès sur rue - Accès PMR - ERP 5 au RDC.
Au RDC : une très vaste salle de sport, un salon, un accueil, cuisine, vestiaires, local technique et sanitaires.
Au 1er étage : deux grandes salles de sport avec belle HSP, sept bureaux, joli patio, locaux techniques, douche et sanitaires.
	Ce bâtiment abritait l'ancien cabaret Concert Mayol, transformé depuis en salle de sport.
Linéaire de vitrine de 8m avec 2 accès sur rue - Accès PMR - ERP 5 au RDC.
Au RDC : une très vaste salle de sport, un salon, un accueil, cuisine, vestiaires, local technique et sanitaires.
Au 1er étage : deux grandes salles de sport avec belle HSP, sept bureaux, joli patio, locaux techniques, douche et sanitaires.
 
							 
							 
							 
							 
							 
							 
							 
							 
							 
							 
							 
							 
							 
						 
						 
						 
						 
						 
						 
						 
						 
						 
						 
						 
						