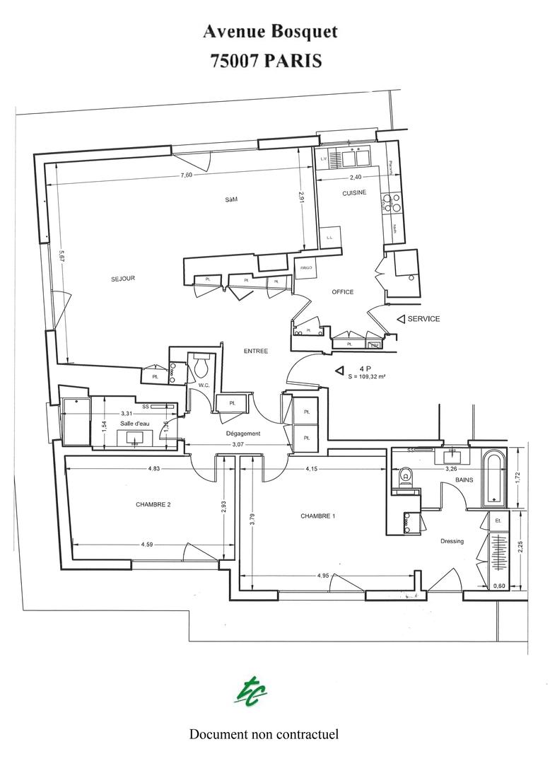
AVENUE BOSQUET
Loyer : 5 030 €
Dont charges : 530 €
Dépôt de garantie : 4 500 €
Superficie : 111 m²
Pièces : 4
2 chambres, balcon filant, cave, VUE EXCEPTIONNELLE
Dans un immeuble des années 60 de très bon standing avec gardien et ascenseur, à louer un superbe appartement de 111 m² au 9e et dernier étage :
* une entrée
* un grand salon/ salle à manger avec balcon filant
* deux chambres avec balcon filant
* cuisine séparée aménagée et grand office attenant
* un sanitaire séparé
* 1 salle de douche
* 1 salle de bain avec sanitaire
- Nombreux placards
- Parquet
- Vue exceptionnelle sur tout Paris
- cave
* une entrée
* un grand salon/ salle à manger avec balcon filant
* deux chambres avec balcon filant
* cuisine séparée aménagée et grand office attenant
* un sanitaire séparé
* 1 salle de douche
* 1 salle de bain avec sanitaire
- Nombreux placards
- Parquet
- Vue exceptionnelle sur tout Paris
- cave