BOULEVARD SAINT MICHEL
Loyer : 5 700 €
Dont charges : 500 €
Dépôt de garantie : 5 200 €
Superficie : 165 m²
Pièces : 6
Type de chauffage : collectif
Bel appartement familial et de réception, balcon filant, cave
Bd Saint Michel, dans un immeuble haussmannien de très bon standing avec gardien et ascenseur, à louer bel appartement de 6 pièces :
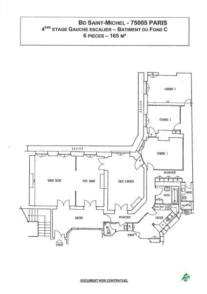
- 4ème étage gauche, bât C : 165 m²
* 1 galerie d'entrée, 1 grand salon, 1 petit salon, 1 salle à manger
* 3 chambres
* 1 salle de bain, 1 salle de douche avec sanitaire, 1 sanitaire séparé
* 1 cuisine aménagée
* parquet, cheminées, moulures
* balcon filant
* 1 cave complète ce bien
- 4ème étage gauche, bât C : 165 m²
* 1 galerie d'entrée, 1 grand salon, 1 petit salon, 1 salle à manger
* 3 chambres
* 1 salle de bain, 1 salle de douche avec sanitaire, 1 sanitaire séparé
* 1 cuisine aménagée
* parquet, cheminées, moulures
* balcon filant
* 1 cave complète ce bien