AVENUE BOSQUET
Loyer : 5 400 €
Dont charges : 600 €
Dépôt de garantie : 4 800 €
Superficie : 138 m²
Pièces : 6
Type de chauffage : collectif
Diagnostic du bien
GRAND APPARTEMENT FAMILIAL AVEC BALCONS
Avenue Bosquet, quartier Gros Caillou, dans un immeuble des années 60 de très bon standing avec gardin et ascenseur, à louer un très bel appartement de 6 pièces :
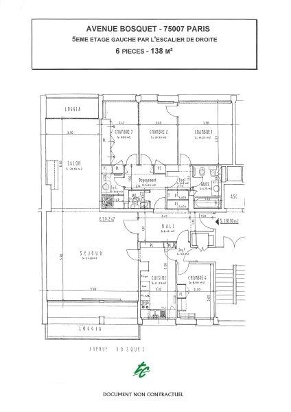
- 5e étage : 138 m²
* Une entrée, un grand double séjour avec loggia et balcon
* 4 chambres dont 2 avec placards
* 1 salle de bains avec sanitaire, 1 salle d'eau, 1 sanitaire séparé
* 1 belle cuisine aménagée
* Nombreux placards
* Belles prestations générales
* 1 cave et 1 parking possible (180 €/mois) complètent ce bien
- 5e étage : 138 m²
* Une entrée, un grand double séjour avec loggia et balcon
* 4 chambres dont 2 avec placards
* 1 salle de bains avec sanitaire, 1 salle d'eau, 1 sanitaire séparé
* 1 belle cuisine aménagée
* Nombreux placards
* Belles prestations générales
* 1 cave et 1 parking possible (180 €/mois) complètent ce bien